Bio-Synergies Thesis 2010-11
My name is Kent Wu. This blog will be documentation of my trials and revelations for my yearlong Thesis Project to complete my Bachelor of Architecture at the University of Oregon. It'll possibly include other observations that are come to me during this process. Please feel free to comment.
Sunday, June 12, 2011
Tuesday, June 7, 2011
Saturday, June 4, 2011
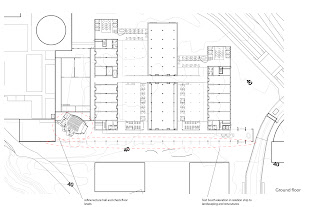
Wednesday, May 11, 2011
Mid-term Review 2
I got some ideas on how to manage rain water and water in general, and I'm going to proceed in making the each atrium space unique and atmosphere. I see the Atriums doing multiple things, cleaning/ polishing grey water through plants, a formal and informal meeting place, aid in passive cooling strategies.
Sunday, April 24, 2011
Post first review of spring term update
After the Review session, got super AMPED to designing some of the other parts of my building with the critiques fresh in mind. Like how can the columns add to the rhythm of office and balcony spaces in the atrium. How can landscaping/ trees conspire with the sunshading and the structural system behind that and the exhibit space behind that and the circulation behind. oh so many wholesome layers like a lasagna. Plans still got a few kinks but hope to massage them out before too long.
Tuesday, April 19, 2011
pin-up thoughts
I need to add rows of columns to reduce the space of the laboratories. also the curtain wall need to be supported as well a the glass roof . the glass roof in particular should be expressed with care.
Sunday, March 13, 2011
Saturday, February 26, 2011
baby and the bathwater
the mantra of this studio's instruction "don't throw the baby out with the bathwater" ... well I had to.1 the water wasn't water it, was nuclear waste, thats what you get when you turn think design process is a faucet. 2 thus the baby wasn't a baby no more... 3 it was a monster with sharp teeth. 4 it bit me... multiple times, each time I'd try to clean it up... monsters don't operate on logic. so yes, I had to throw the "baby" out. I had to find my baby and I did and oh what a joy. Instead of using "design from the tap," I went to the source. Pure clean water. The bull run watershed if you will or the Jordon river (coincidentally, I unknowingly went to my first Shabbat last night)... I got lost and my faithful classmates, or Adonai. showed me the way. Its painfully up hill but just follow the river, follow your flow. This time around I'm going to wash my baby the way I need to. bye bye baby....
Friday, February 18, 2011
Mid-term Review
This is a quick reflection, Don't want to waste too much time.
notes from review:
-go back to the urban site and see how that informs the buildings form
-too many geometries, worse of all many are not well justified
-let the form leave some things to the imagination, let the mind fill in the blanks or guide the eye more.
Own reflections
-Develop a clear urban scale diagrams to help clarify my intentions and thought process so Ican articulate them better ( I did that very poorly for review an the reason is there was no visual cues that I could speak about.) - this Weekend.
Design the urban spaces and define them (start of next week).
Let my design evolve from that urban plan. ( mid next week).
notes from review:
-go back to the urban site and see how that informs the buildings form
-too many geometries, worse of all many are not well justified
-let the form leave some things to the imagination, let the mind fill in the blanks or guide the eye more.
Own reflections
-Develop a clear urban scale diagrams to help clarify my intentions and thought process so Ican articulate them better ( I did that very poorly for review an the reason is there was no visual cues that I could speak about.) - this Weekend.
Design the urban spaces and define them (start of next week).
Let my design evolve from that urban plan. ( mid next week).
Thursday, February 10, 2011
The nucleus, what does that look like?
So I'm trying to investigate what makes the nucleus a place of interaction and how to define a atrium space?
The atrium has to perform as a formal meeting space, "break" informal meeting space and vertical circulation. The idea is to create more informal interaction. I started with a formal geometry of the cylinder for its to contrast with the other lab spaces and give a hierarchy of geometries to the overall. To determine these floors that would, I used coins to indicate a person and their "bubble". My investigation looks at how the paths and adjacent informal meeting spaces can influence collaboration.
The atrium has to perform as a formal meeting space, "break" informal meeting space and vertical circulation. The idea is to create more informal interaction. I started with a formal geometry of the cylinder for its to contrast with the other lab spaces and give a hierarchy of geometries to the overall. To determine these floors that would, I used coins to indicate a person and their "bubble". My investigation looks at how the paths and adjacent informal meeting spaces can influence collaboration.
Subscribe to:
Comments (Atom)











